NARI MN RotY Awards 2024

NARI MN RotY Awards 2024 Residential Bath $40,000 - $70,000
Big Order
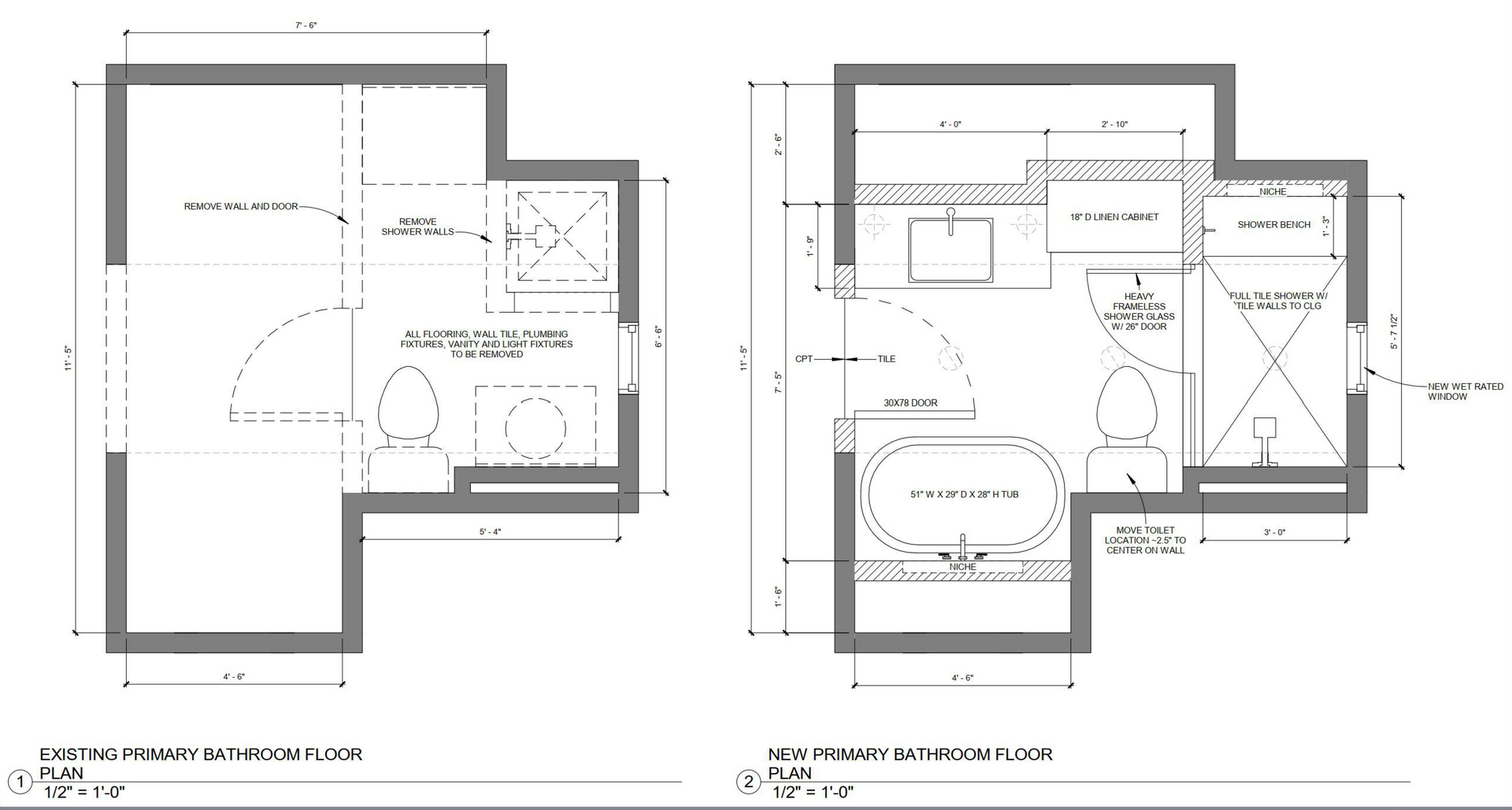
Biggest challenge in this St. Paul craftsman style home's primary bath was trying to fit a full bathroom with a shower and soaking tub in a tiny 2nd floor attic space. The upper level housed the primary bedroom and bathroom. Our clients desired a working shower and a freestanding tub. The plumbing was not working when they moved into the house and they had to share a main floor bathtub/shower with their two small children.
Their bathroom was extremely dated and the ceiling was sloped and low, even at its highest point. We came up with a few different options for our clients to consider. By incorporating the window into the shower, we were able to maximize the square footage of the shower by spanning it across the end of the bathroom. We added a built-in bench and shampoo niche in the shower, and added towel hooks inside the shower at the end. A necessary solution given there was no other wall space for them.
We opened up more space in the bathroom by removing walls between the existing bathroom and the storage alcoves. This allowed us to use those areas for the new bathtub and vanity. We also pushed the side walls back wherever possible by utilizing some of the attic storage space behind the existing bathroom. Creativity was key in making every square inch count!
One of our other challenges was finding a bathtub small enough to fit the alcove space we had available in the new layout, plus finding a bathtub that would fit up their very narrow staircase! It was not an easy feat, but we were able to find a small-scale tub that would fit. It is quite compact, but it is also deep. Our clients are thrilled with it, and now they can enjoy a little relaxation in their very own adult bathroom.
“…Creativity was key in making every square inch count!”
NARI MN RotY Awards 2024 Residential Bath $40,000 - $70,000

For the overall aesthetic, we wanted to respect the architecture of the home. The house was originally built in 1939 and belonged to our client's grandparents. It was important that the materials we chose would be representative of the era. We also wanted to achieve a classic and timeless look that our clients would be happy with for many years to come.
We chose black walnut for the custom cabinetry, carrara marble countertops and shower tile, and white porcelain tile with veining for the main bathroom floor. Wall sconces and recessed lighting worked well with the low ceilings.
NARI MN RotY Awards 2024 Residential Bath $40,000 - $70,000
Floor Plans

NARI MN RotY Awards 2024 Residential Bath $40,000 - $70,000
This is Now
We love how this bathroom turned out. It is truly a classic beauty! Our clients are overjoyed to have such a lovely space with all of the amenities they desired. They are able to enjoy raising their children in their family “legacy” home.
AFTER
NARI MN RotY Awards 2024 Residential Bath $40,000 - $70,000
"Our massive challenge was tiny space."
We had to use every square inch we could for storage and functionality. Claiming unusable unsightly areas just outside the original 3/4 bath, we were able to create the luxurious grown up full bath with soaking tub the homeowners dreamed of. This impossible space is fitted with just as many full sized features found in much larger bathing rooms, yet does not feel cramped at all. A prime example of dimensional transcendence.











































